Олимпиадная задача про Золушку: квадратное одеяло и целые стороны — 5-7 класс
Задача
Мачеха приказала Золушке сшить квадратное одеяло из пяти прямоугольных кусков так, чтобы длины сторон всех кусков были попарно различны и составляли целое число дюймов. Сможет ли Золушка выполнить задание без помощи феи-крестной?
Решение
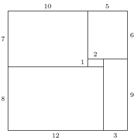
Например, из прямоугольников 1×2, 7×10, 6×5, 8×12 и 9×3 можно составить квадрат 15×15 (см. рис.).

Ответ
Сможет.
Чтобы оставлять комментарии, войдите или зарегистрируйтесь
Комментариев нет